NATURES URBAINES ALENÇONNAISES

2 medias répartis dans 2 lots

Déplier tous les niveaux

Date

1er juin 2020 - 31 oct. 2020

Organisme responsable de l'accès intellectuel

Archives Communales de la ville d'Alençon

Cote/Cotes extrêmes

1O/7 (Cote principale)

Autres Cotes

14O (Ancienne cote)

Date

24 janv. 1957 - 28 mai 1957

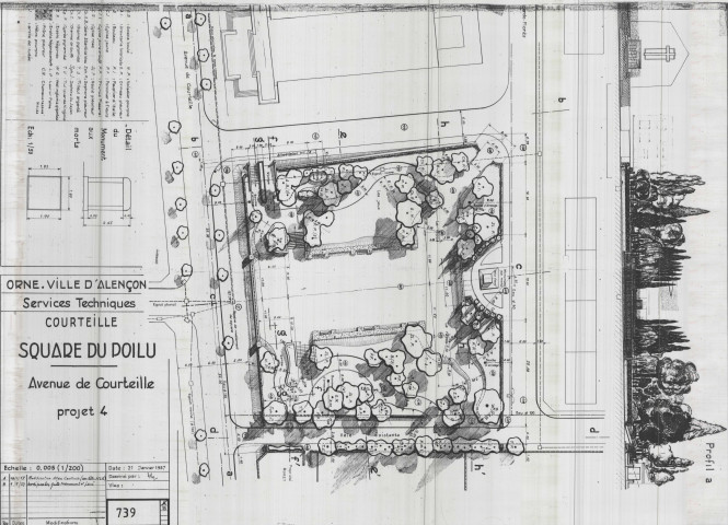
Square du Poilu, Avenue de Courteille, projet 4, plan (Services Techniques, 1/200, 21 janvier 1957, modification 4 mai 1957 PC035) (118.5x82).

Cote/Cotes extrêmes

1FI/14178 (Cote principale)

Date

21 janv. 1957 - 04 mai 1957

Particularité physique

tirage papier

Dimensions

118.5 x 82